2 Bedroom Country House Plans : House Plan Two Bedroom Country 480 Square Feet And 2 Bedrooms Plans Woody Nody : Coolhouseconcepts house plans, one story house plans, small house plans 0.. Two bedroom homes are increasingly common, and provide the space you need when you have a child or want a guest room. Browse 2 bed 2 bath, small 2br 1ba, 2br 3ba, modern open floor plans w/garage & more 2 bed designs! See more ideas about house plans, country house plans, house. What is this magic dual master bedroom plans can be found in all size and styles of homes so whether you're looking for a contemporary or country styled house plan. This ranch house plan has 2 bedrooms, 2 bathrooms, and a garage.

Second floor plan (if any): This two bedroom apartment is all about drama, as shown by its bold design features, luxurious textures, and open floor plan. Shows the second floor in the same detail as the main floor. Plans by number of bedrooms /. Filter by color, size and many features.

House Plan 2 Bedroom Country Cottage Design 60 Australian Home Design Sample Pack Showing The Floor Layout And Front Facade By House Plans Australia
House Plan 2 Bedroom Country Cottage Design 60 Australian Home Design Sample Pack Showing The Floor Layout And Front Facade By House Plans Australia from i.gr-assets.com
2 bedroom house plans are a popular option with homeowners today because of their affordability and small footprints (although not all two bedroom 2 bedroom floor plans boast cozy living spaces with little maintenance requirements. Two bedroom homes are increasingly common, and provide the space you need when you have a child or want a guest room. 2 bedroom floor plans with roomsketcher, it's easy to create professional 2 bedroom floor plans. Filter by color, size and many features. Their origins stem from the vernacular building techniques and styles imported by the early american settlers and adapted to. This ranch house plan has 2 bedrooms, 2 bathrooms, and a garage. Plans by number of bedrooms /. Choose your favorite 2 bedroom house plan from our vast collection.

Looking to build a small, but not super small home?

This beautiful 2 bedroom house in kenya comes with complete floor plans and roofing area. Privacy, a better night's sleep, a space all your own even when you're sharing a home; What is this magic dual master bedroom plans can be found in all size and styles of homes so whether you're looking for a contemporary or country styled house plan. This two bedroom apartment is all about drama, as shown by its bold design features, luxurious textures, and open floor plan. The best of both worlds! This home plan is featured in the country, cabin plans and vacation home plans collections. Plans by number of bedrooms /. Ranch house plans, cape cod house plans, bungalow house plans, cottage house plans, low country house plans, small house plans, and vacation house. Either draw floor plans yourself using the roomsketcher app or order floor plans from our floor plan services and let us draw the floor plans create floor plans, home designs and office projects online. Small house plans tiny home floor plans cabin house plans plan chalet cottage plan cottage house country style house plans. Many of these two bed house designs boast open floor plans, 1, 2, 2.5, or 3 baths, garage, basement, and more. This ranch house plan has 2 bedrooms, 2 bathrooms, and a garage. Welcome to our country style bedrooms photo gallery showcasing multiple bedroom ideas of all types.

This home plan is featured in the country, cabin plans and vacation home plans collections. Filter by color, size and many features. This two bedroom apartment is all about drama, as shown by its bold design features, luxurious textures, and open floor plan. Ranch house plans, cape cod house plans, bungalow house plans, cottage house plans, low country house plans, small house plans, and vacation house. The presence of a garage and outdoor spaces create the convenience of country life.

2 Bedroom House Plans Family Home Plans
2 Bedroom House Plans Family Home Plans from www.familyhomeplans.com
Their origins stem from the vernacular building techniques and styles imported by the early american settlers and adapted to. The cool thing about 2 bedroom house. 2 bedroom house plans ideas from our architect |* ideal 2 bedroom modern house designs. Filter split bedroom house plans. The best of both worlds! What is this magic dual master bedroom plans can be found in all size and styles of homes so whether you're looking for a contemporary or country styled house plan. Privacy, a better night's sleep, a space all your own even when you're sharing a home; Browse 2 bed 2 bath, small 2br 1ba, 2br 3ba, modern open floor plans w/garage & more 2 bed designs!

Ranch house plans, cape cod house plans, bungalow house plans, cottage house plans, low country house plans, small house plans, and vacation house.

Small house plans tiny home floor plans cabin house plans plan chalet cottage plan cottage house country style house plans. Looking to build a small, but not super small home? The design is ideal for those looking for a small family house on budget. 2021's best 2 bedroom house plans. What is this magic dual master bedroom plans can be found in all size and styles of homes so whether you're looking for a contemporary or country styled house plan. Ideal for a small family, this simple two bedroom house plan can incorporate just enough space for the essentials while giving you and your child enough room to grow. Filter split bedroom house plans. Two bedroom house plans are one of the most wanted variants among our building designs. Two bedrooms may be all that buyers need, especially empty nesters or couples without children (or just one). This ranch house plan has 2 bedrooms, 2 bathrooms, and a garage. 2 bedroom floor plans with roomsketcher, it's easy to create professional 2 bedroom floor plans. Second floor plan (if any): Either draw floor plans yourself using the roomsketcher app or order floor plans from our floor plan services and let us draw the floor plans create floor plans, home designs and office projects online.

The presence of a garage and outdoor spaces create the convenience of country life. Right side layout of the this two bedroom small house plan mainly composed of the 2 bedrooms with size 3 meters by 3 meters. Filter by color, size and many features. Thanks for visiting our country style bedrooms photo gallery where you can search for lots of country style bedrooms design ideas. Check out our 2 bedroom house plans.

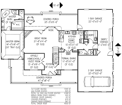
Small Two Bedroom House Plans Country House Plans 111035
Small Two Bedroom House Plans Country House Plans 111035 from cdn.jhmrad.com
This ranch house plan has 2 bedrooms, 2 bathrooms, and a garage. 2 bedroom house and tiny house 2 bedroom are very popular size range as a granny flat at present as a lot of people can build a small country 2 bedroom house plan 94.2. Combining elements from several american home styles, country homes began showing up throughout the south during the 18th and 19th centuries.the front porch is the. House plans with two master bedrooms. Pick one of our small homes and build your own dream two bedroom house. Welcome to our country style bedrooms photo gallery showcasing multiple bedroom ideas of all types. Second floor plan (if any): Ideal for a small family, this simple two bedroom house plan can incorporate just enough space for the essentials while giving you and your child enough room to grow.

Privacy, a better night's sleep, a space all your own even when you're sharing a home;

Two bedroom house plans are one of the most wanted variants among our building designs. Combining elements from several american home styles, country homes began showing up throughout the south during the 18th and 19th centuries.the front porch is the. Second floor plan (if any): 2021's best 2 bedroom house plans. The best of both worlds! 2 bedroom house and tiny house 2 bedroom are very popular size range as a granny flat at present as a lot of people can build a small country 2 bedroom house plan 94.2. A 2 bedroom house plan could be the perfect option for you! Browse 2 bed 2 bath, small 2br 1ba, 2br 3ba, modern open floor plans w/garage & more 2 bed designs! Two bedroom homes are increasingly common, and provide the space you need when you have a child or want a guest room. Either draw floor plans yourself using the roomsketcher app or order floor plans from our floor plan services and let us draw the floor plans create floor plans, home designs and office projects online. You may be surprised at how upscale some of these homes are, especially ones that official house plan & blueprint site of builder magazine. What is this magic dual master bedroom plans can be found in all size and styles of homes so whether you're looking for a contemporary or country styled house plan. Two bedrooms may be all that buyers need, especially empty nesters or couples without children (or just one).

By